Горизонтальные фильтры-грязеуловители ФГГ устанавливаются на магистральных нефтепроводах и перекачивающих станциях магистральных нефтепродуктопроводов диаметром от 200 до 1200 мм и номинальным давлением от 16 до 80 кгс/см2. Они используются для очистки перекачиваемой среды от механических предметов, примесей, отложений и окалины, образующихся во время эксплуатации магистральных нефтепроводов.
Выбор фильтров для конкретных условий эксплуатации осуществляет проектная организация, применяющая его в своем проекте. Фильтры устанавливаются в районах с сейсмичностью, не превышающей 10 баллов по шкале MSK-64 и предназначены для эксплуатации в условиях макроклиматических районов в соответствии с ГОСТ 15150. Климатическое исполнение «У», «ХЛ» и «УХЛ».
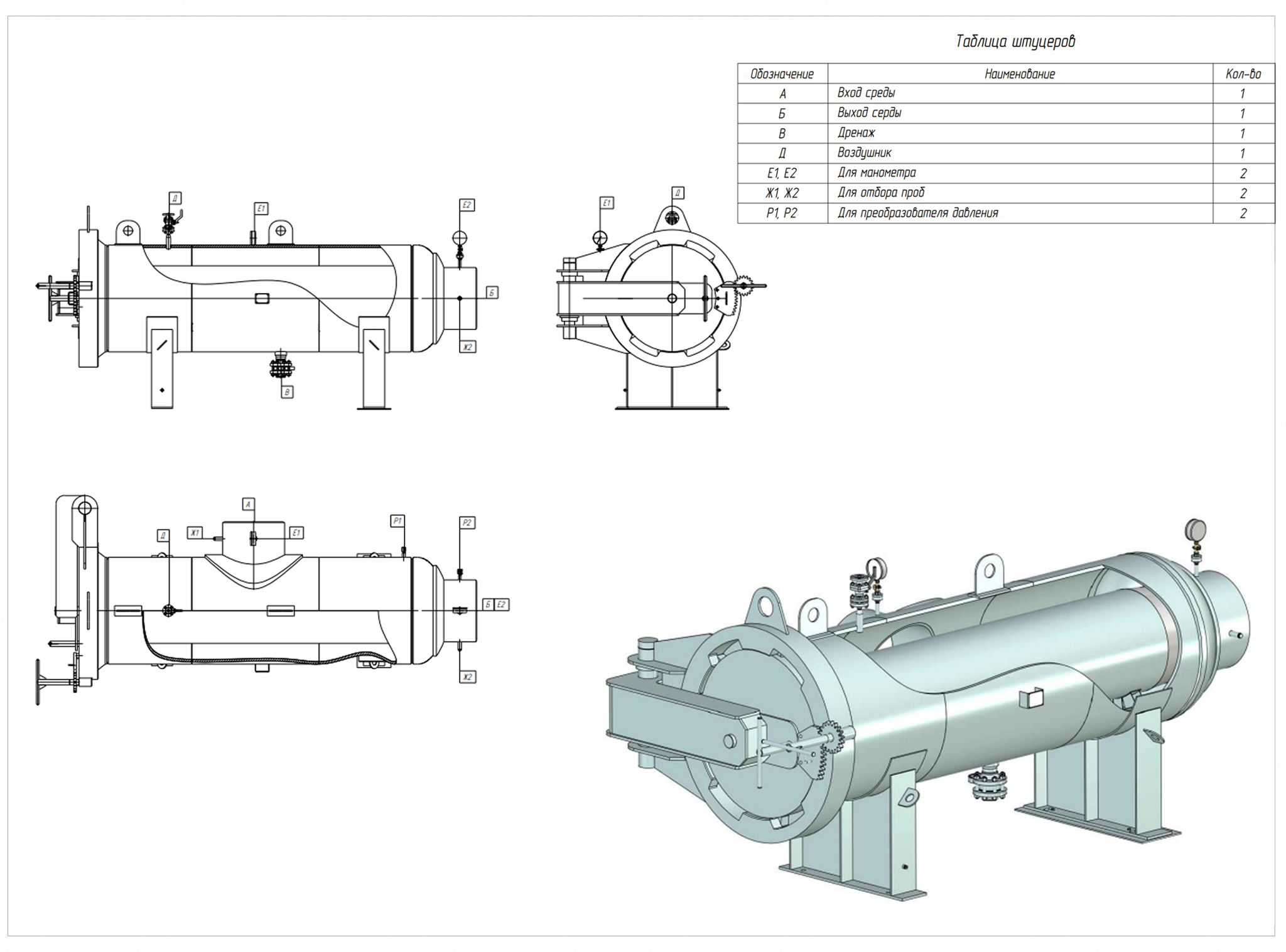
Конструктивно фильтр-грязеуловитель ФГГ представляет собой цилиндрический сосуд, с одной стороны которого находится быстроразъемный концевой затвор (байонетный или хомутовый), а с другой - патрубок соответствующего диаметра для подсоединения к трубопроводу. Внутри устанавливается съемный фильтрующий элемент многократного использования в виде перфорированной трубы, изготовленный из нержавеющей стали. Для перемещения фильтрующего элемента внутри корпуса предусмотрены искробезопасные ролики.
На фильтре предусмотрены следующие патрубки: - патрубки подвода и отвода среды, соответствующие диаметру подсоединяемого трубопровода; - патрубок с установленным вентилем, краном или другим устройством, позволяющим осуществлять контроль за отсутствием давления в фильтре перед его открыванием, а также удаление воздуха при гидравлическом испытании; - патрубок для присоединения дренажного трубопровода; - два патрубка для манометров, устанавливаемые на патрубках подвода и отвода среды.
Условное обозначение фильтров ФГГ:
ФГГ-200-4,0-Б-О-Пр-С0-У1, где:
ФГГ – фильтр-грязеуловитель горизонтальный;
200 – номинальный диаметр, мм;
4,0 – давление, МПа;
Б – блочного исполнения;
О – расположение патрубка отвода среды (О – осевое, Б - боковое;
Пр –расположение патрубка подвода среды (Л – левое. Пр – правое);
С0 – сейсмостойкость;
У1 – климатическое исполнение;
В качестве дополнительных приспособлений, упрощающих эксплуатацию фильтров, изготавливаются:
-
выкатной стол для прочистки фильтроэлемента;
-
поддон для слива загрязняющих веществ;
-
ручная/электрическая лебедка для вытягивания фильтроэлемента из корпуса фильтра, которая может закрепляться на выкатном или на отдельном столе;
-
кран с ручной талью для подъема и перемещения фильтроэлемента;
-
комплект запасных частей (по указанию в технической документации);
-
комплект инструмента для чистки фильтра (для блочного исполнения, по указанию при заказе);
-
фундаментные болты для крепления фильтра в проектном положении (по указанию в технической документации).

