Расширители продувки (РП, РПП, РНП) используются для разделения пароводяной смеси на пар и воду, которая образуется при дросселировании горячих сбросов котла-утилизатора (продувочная вода).
Довольно часто в теплоэнергетической промышленности применяют также расширители дренажей РД, имеющие схожую с РП конструкцию.
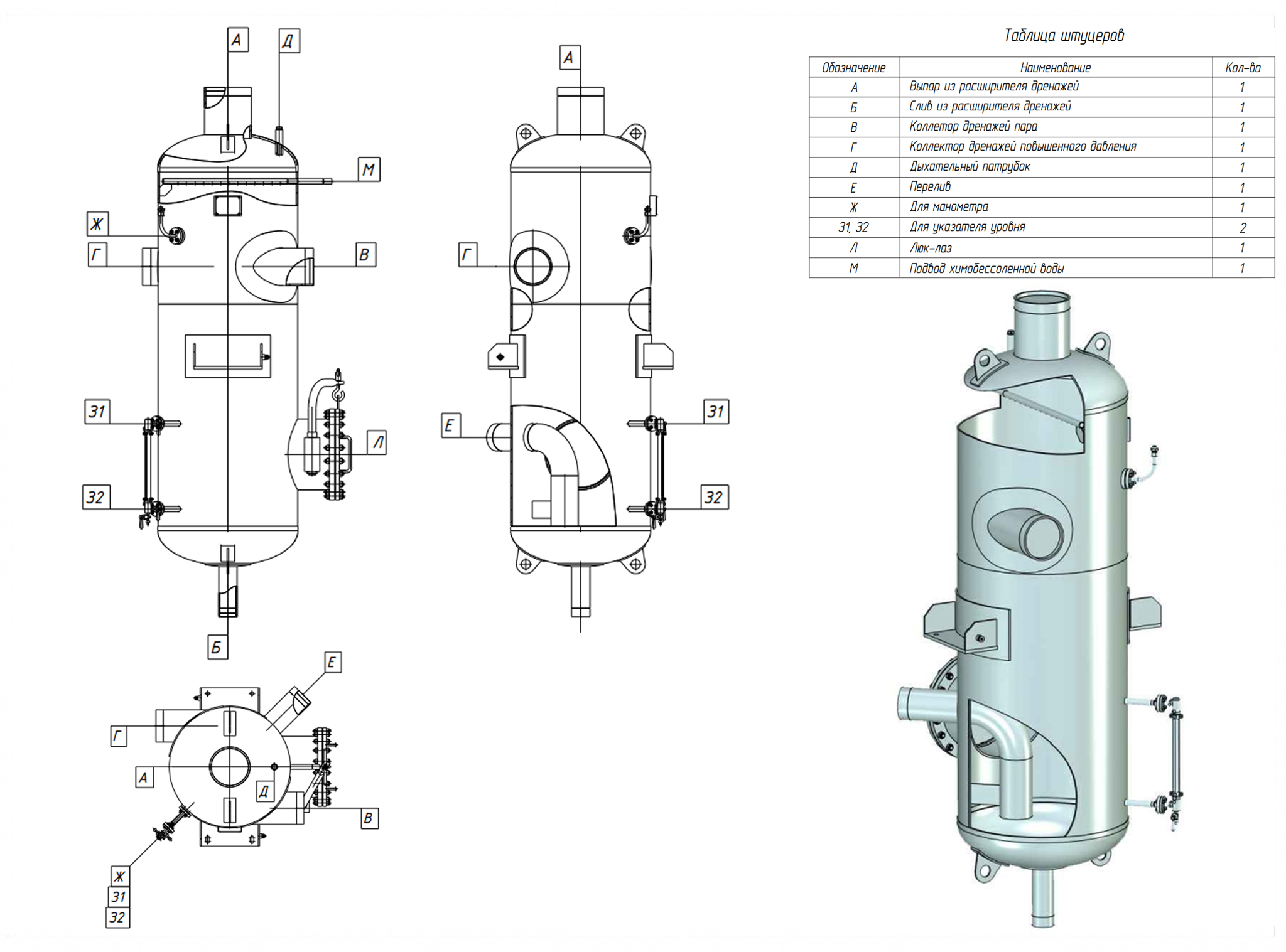
Основное назначение расширителей продувки - это приём пароводяной смеси от котла, её разделение на пар и воду за счёт расширения и вращательного движения потока в приёмном устройстве расширителя, где происходит процесс отделение воды. Отсепарированный пар выходит через верхний штуцер в атмосферу.
РП – расширитель продувки;
РПП – расширитель периодической продувки;
РНП – расширитель непрерывной продувки;
РД – расширитель дренажей;
Расширитель продувки представляют собой вертикальный цилиндрический сосуд с эллиптическими днищами, смотровым люком, тангенциальным подводом продувочной воды (конденсата) и необходимыми для работы штуцерами. Также при необходимости расширители продувки оснащаются внутренними отбойными защитными обечайками, предназначенными для защиты корпуса от воздействия абразивных частиц входного потока, а также внутренними устройствами, улучшающими процесс отделения жидкости из пароводяной смеси.
Маркировка расширителей непрерывной и периодической продувки:
РП-7,5-2,0, где:
РП – расширитель продувки
7,5 – объем, м3
2,0 – диаметр корпуса, мм
Установка расширителей продувки должна производиться таким образом, чтобы обеспечивать устойчивость работы и возможность технического обслуживания.
Стандартные исполнения расширителей продувки: РП-0,12-0,35, РП-0,18-0,45, РП-0,4-0,44, РП-0,5-0,7, РП-0,6-0,6, РП-1,4-0,7, РП-1,77-0,8, РП-2,6-1,0, РП-4,0-1,3, РП-4,84-1,2, РП-5,0-1,4, РП-7,5-2,0 (Р-2000), РП-7,5-2,0 (Р-2000), РП-7,68-1,6, РП-8,1-1,8, РП-10,5-1,8, РП-22-2,6
ООО «Химмаш» может изготовить и нестандартные модификации расширителей непрерывной и периодической продувки и расширителей дренажей.

