Каталог продукции
Компенсаторы
Заказ продукции

Cепараторы-пробкоуловители

Описание
Технические характеристики
Эскизы
Фото
Видео
Опросный лист
Стоимость продукции:
от 850 000 руб.

Сепараторы-пробкоуловители предназначены для улавливания жидкостных пробок, которые образуются при передвижении газожидкостных сред по трубопроводам перед подачей рабочей среды на технологическое оборудование в установках комплексной подготовки газа, компрессорных станциях и других объектах.

Помимо удаления пробок, пробкоуловители очищают выходящий газ газа от капельной влаги и твердых загрязнений, а также производят первичное разделение сред.

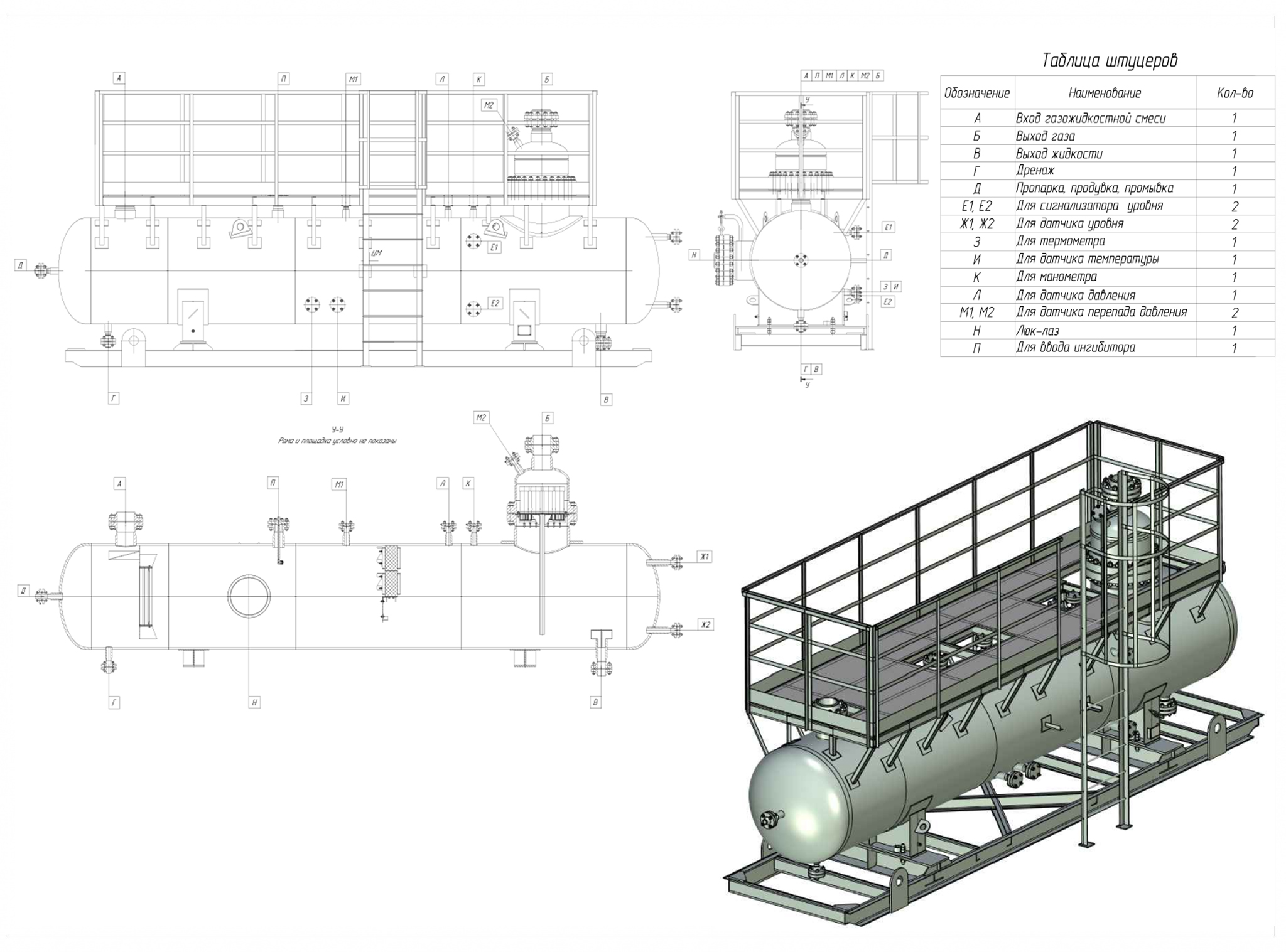
Пробкоуловитель представляет собой горизонтальный цилиндрический сосуд с технологическими и штуцерами и элементами внутреннего устройства: секцией приема, осадительной и отбойной секцией, а также секцией, расположенной в верхней части сепаратора и оснащенной центробежными сепарационными элементами (при необходимости тонкой очистки газа). 

nox3y3zc0ns50jxl96jhj616kl3aksn7.jpg

В обязательном порядке пробкоуловитель содержит штуцеры для установки приборов контроля за внутренним давлением, уровнем жидкости и т.д. 

Запорно-регулирующая арматура, ЗИП, поворотные заглушки (обтюраторы), приборы КИПиА, предохранительная арматура, теплоизоляция и система обогрева, площадки обслуживания – всё это может быть изготовлено, и поставлено нашей компанией в случае, если такая комплектация оговорена при заключении договора поставки.

Обратившись в отдел маркетинга ООО «Химмаш» по электронной почте marketing@penzahim.ru Вы сможете получить технико-коммерческое предложение с приложенным эскизом конструкции и расчетом стоимости сепаратора-пробкоуловителя. 

Технические характеристики сепараторов-пробкоуловителей

Производительность по нефтегазовой смеси Рабочее давление Диапазон рабочих температур Рабочая среда Степень сепарации Объем, диаметр, длина Материальное исполнение
от 10 м3/ч и выше 0,6 - 40 МПа от -70 до 200 С нефтегазовая смесь, газожидкостная смесь,
пластовая вода
до 99,9% согласно техническому заданию ст.3,
ст.09Г2С,
ст.20ЮЧ, ст.12Х18Н10Т
и другие.

Эскиз сепаратор-пробкоуловитель

eэскиз.jpg

Для заказа нашей продукции вы можете скачать опросный лист на cепараторы-пробкоуловители и направить его по электронной почте: marketing@penzahim.ru. Также можете связаться с нашими менеджерами по телефонам: +7(8412) 99-19-89, 99-19-35, 99-19-73, 99-19-75, 99-19-24.